Skip To Content

1106 Ogeechee Court

Spartanburg, SC 29303
  • $294,745
  • STATUS: Active
  • ON SITE: 37 Days
  • ID#: 329728
Open House
UPDATED: 47 min ago
$294,745
  • 4
    BEDS
  • 0.12
    ACRES
  • 2
    BATHS
  • 1
    1/2 BATHS
  • 2,015
    SQFT
  • $146
    $/SQFT
Neighborhood:
Type:
Single-Family Home
Built:
2025
County:
Area:

School Information

Elementary School:
Middle School:
High School:
School District:

Description

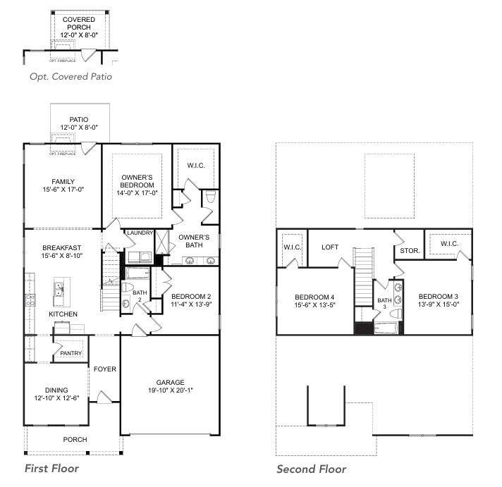
Discover the inviting charm of Halton Oaks, a thoughtfully designed community just minutes from shopping, dining, and entertainment. With award-winning schools, convenient interstate access, and exceptional amenities, it's the perfect place to call home. The Karamea floorplan blends elegance, function, and style in every detail. A welcoming foyer opens to the soaring second story, creating a sense of space and sophistication from the moment you enter. The main level features a primary bedroom with ensuite that includes dual vessel sinks, quartz countertops, a beautifully tiled shower with sliding glass doors, and ceramic tile flooring. The open-concept kitchen and family room is perfect for both everyday living and entertaining. The gourmet kitchen is a chef's dream, showcasing a generous island, gleaming quartz countertops, stainless steel appliances, pendant lighting, a five-burner gas range, and a refrigerator already included. A covered patio off of the living room is the ideal setting for relaxing or hosting gatherings in your backyard retreat. Upstairs, a cozy loft provides a versatile second living areaperfect for a TV room, hobbies, or a quiet getaway. Three spacious bedrooms are also upstairs, each with walk-in closets. These bedrooms share a full bath with dual sinks, which completes the upper level, ensuring comfort and convenience. There is even an irrigation system! Community amenities include pool, clubhouse and playground. Schedule your tour today! ***Limited time buyer incentives including up to 100% Financing with down payment assistance***

Monthly Payment Calculator



© 2025 Multiple Listing Service of Spartanburg, Inc. All rights reserved. The data relating to real estate for sale or lease on this web site comes in part from MLSS. IDX information is provided exclusively for consumers' personal, non-commercial use and may not be used for any purpose other than to identify prospective properties consumers may be interested in purchasing. Information is deemed reliable but is not guaranteed accurate by the MLS or The Mershon Team | Agent Group Realty. Data last updated: 2025-11-18T10:56:41.75.
www.themershonteam.com/homes/168801809
Print Image

1106 Ogeechee Court Spartanburg, SC 29303

  • Price: $294,745
  • Status: Active
  • On Site: 37 Days
  • Updated: 47 min ago
  • ID#: 329728
4
Beds
2
Baths
1
½ Baths
0.12
Acres
2,015
SQFT
$146
$/SQFT
2025
Built
Neighborhood:
Halton Oaks
County:
Spartanburg
Area:
Spartanburg
Elementary School:
7-Drayton Mills Elementary
Middle School:
7-Mccracken
High School:
7-Spartanburg
School District:
7 Sptbg Co
Property Description
Discover the inviting charm of Halton Oaks, a thoughtfully designed community just minutes from shopping, dining, and entertainment. With award-winning schools, convenient interstate access, and exceptional amenities, it's the perfect place to call home. The Karamea floorplan blends elegance, function, and style in every detail. A welcoming foyer opens to the soaring second story, creating a sense of space and sophistication from the moment you enter. The main level features a primary bedroom with ensuite that includes dual vessel sinks, quartz countertops, a beautifully tiled shower with sliding glass doors, and ceramic tile flooring. The open-concept kitchen and family room is perfect for both everyday living and entertaining. The gourmet kitchen is a chef's dream, showcasing a generous island, gleaming quartz countertops, stainless steel appliances, pendant lighting, a five-burner gas range, and a refrigerator already included. A covered patio off of the living room is the ideal setting for relaxing or hosting gatherings in your backyard retreat. Upstairs, a cozy loft provides a versatile second living areaperfect for a TV room, hobbies, or a quiet getaway. Three spacious bedrooms are also upstairs, each with walk-in closets. These bedrooms share a full bath with dual sinks, which completes the upper level, ensuring comfort and convenience. There is even an irrigation system! Community amenities include pool, clubhouse and playground. Schedule your tour today! ***Limited time buyer incentives including up to 100% Financing with down payment assistance***
Exterior Features

Architectural Style Traditional Construction Materials StoneVinyl Siding Driveway Paved-Concrete Exterior Features Sprinkler System Foundation Details Slab Parking Features 2 Car AttachedGarage Door OpenerDriveway Parking Type Attached Garage Patio And Porch Features PorchCovered Patio Roof Architectural Roof Approx Year 2025 Window Features Tilt-OutWindow Treatments

Interior Features

Above Grade Finished Area 2015 Appliances DishwasherDisposalMicrowaveGas RangeFree-Standing RangeRefrigerator Basement None Below Grade Finished Area 0 Cooling Central Air Cooling Fuel Type Electricity Flooring CarpetCeramic TileLuxury Vinyl Heating Forced Air Heating Fuel Type Gas - Natural Interior Features Ceiling Fan(s)Ceilings-Some 9 Ft +Attic Stairs PulldownWalk-In Closet(s)Ceiling - SmoothSolid Surface CountersEntrance FoyerOpen FloorplanWalk-In PantryRadon Mitigation System Laundry Features 1st Floor2nd FloorLaundry ClosetElectric Dryer HookupMultiple HookupsStackable AccommodatingWasher Hookup Levels Two Lower Level Bedrooms 0 Main Level Bathrooms 1 Main Level Bedrooms 1 Rooms Below Grade 0 Second Floor Baths 1 Second Floor Bedrooms 3 Specialty Rooms Breakfast AreaLoftMain Fl Master Bedroom Water Heater GasTankless

Property Features

Additional Fees Other / Misc. Fee Annual HOAFee Mandatory Yes Approximate Age Under Construction Association Fee 545 Association Fee Frequency Annually Association Fee Includes Common AreaPoolStreet Lights Association YN Yes Auction YN No Community Features ClubhouseCommon AreasStreet LightsPlaygroundPool Foreclosure YN No Garbage Pickup Private Homestead YN No In City YN No Lot Features LevelUnderground Utilities Lot Size Area 1 Lot Size Dimensions 127x42 Owners Features Bath - FullDouble VanityOwner on Main LevelShower OnlyWalk-in Closet Property Disclosure Statement YN No Property Sub Type Single Family Residence Public Water Company Sburg Security Features Smoke Detector(s) Sewer Public Sewer Short Sale YN No Storage Space None Tax Annual Amount 0 Tax Year 2025 Transaction Type For Sale Water Source Public

Listing information © 2025 Multiple Listing Service of Spartanburg, Inc.
Listing provided courtesy of Veranda Homes, LLC: 864-837-2632.



© 2025 Multiple Listing Service of Spartanburg, Inc. All rights reserved. The data relating to real estate for sale or lease on this web site comes in part from MLSS. IDX information is provided exclusively for consumers' personal, non-commercial use and may not be used for any purpose other than to identify prospective properties consumers may be interested in purchasing. Information is deemed reliable but is not guaranteed accurate by the MLS or The Mershon Team | Agent Group Realty. Data last updated: 2025-11-18T10:56:41.75.
 
https://bt-photos.global.ssl.fastly.net/spartanburg/orig_boomver_1_329728-1.jpg https://bt-photos.global.ssl.fastly.net/spartanburg/orig_boomver_1_329728-1.jpg https://bt-photos.global.ssl.fastly.net/spartanburg/orig_boomver_1_329728-1.jpg
Logo
The Mershon Team | Agent Group Realty
200 Millport Circle Suite 200
Greenville SC, 29607